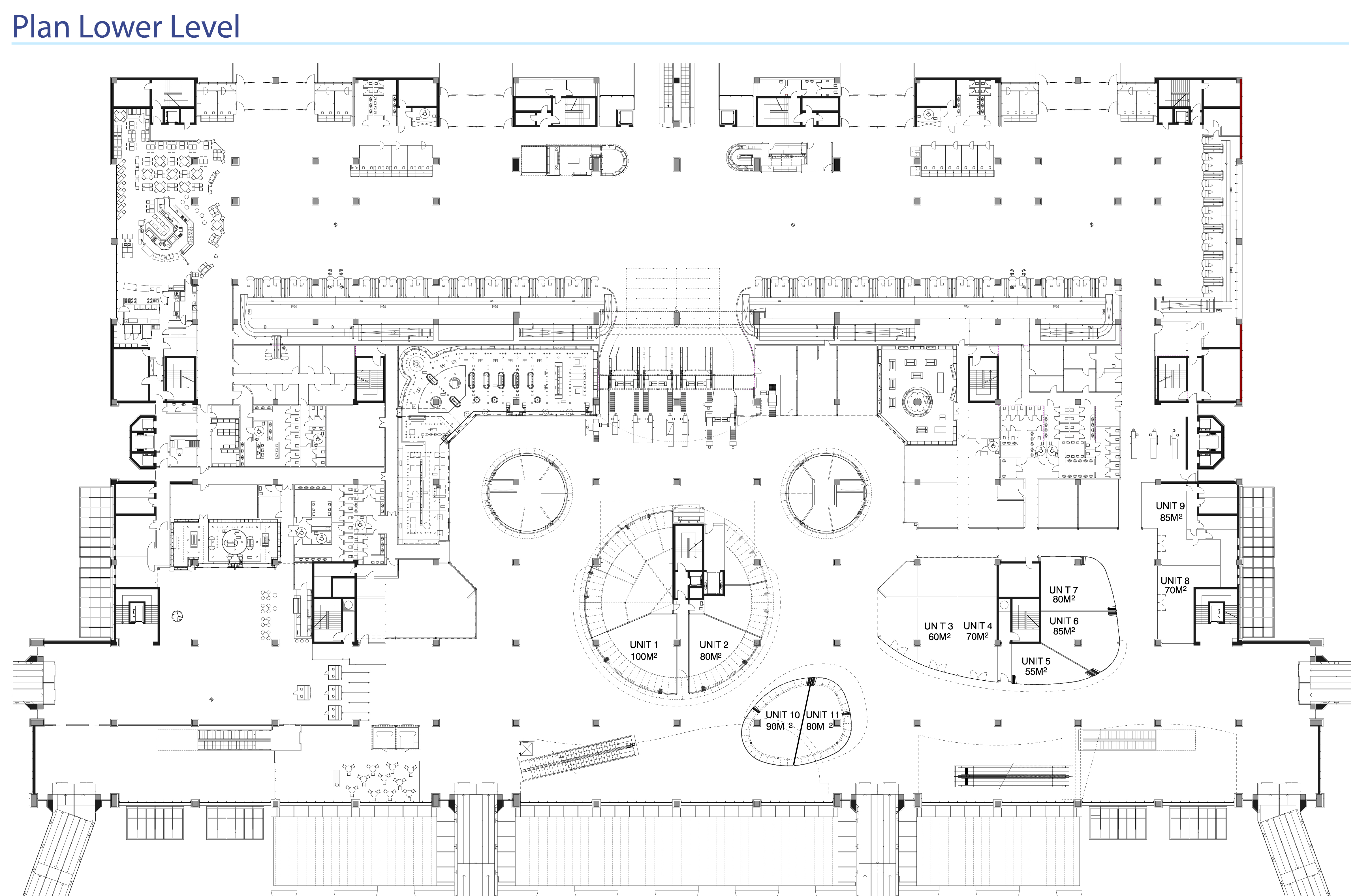
Progetto esecutivo per la realizzazione di nuovi negozi piano primo e secondo zona partenza aerostazione Marco Polo a Venezia

La ristrutturazione prevede la realizzazione e riorganizzazione di nuove 18 attività commerciali e l’adeguamento di percorsi e varchi nel rispetto delle norme secondo il Certificato di Prevenzione Incendi.
Dall’ ingresso “airside” posto al primo piano si accede all’area commerciale che viene modificata e ampliata nella superficie e ridistribuita, soprattutto sul lato est dell’edificio.
Al piano secondo sono stati trasferiti i locali pubblici con le aree di seduta e nuovi e più ampi locali commerciali, in modo da usufruire al meglio di tutti gli spazi a disposizione, ad oggi poco utilizzati.
Tutte le unità commerciali vengono dotate di un nuovo sistema di vetrine con particolari finiture, in modo da creare un ambiente più elegante e funzionale.







