Concorso riqualificazione e ampliamento delle strutture e dei servizi del centro culturale “Corte Valenti”

Progetto “Fabbrica delle idee” e riqualificazione e ampliamento delle strutture e dei servizi del centro culturale “Corte Valenti”
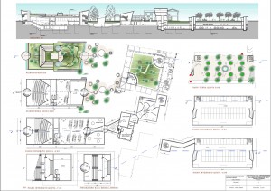
La sede di un “organismo” così importante, per attività e dimensioni, inserisce la questione progettuale in un contesto fisico-dinamico che diviene anche occasione per un confronto urbanistico più generale, su un piano più ampio di ridefinizione di spazi e percorsi, di ricerca e proposte che aiutino a dialogare con la città.

Il sottosuolo è la soluzione, perché ci permette di disporre di spazi e volumi senza togliere alle aree esterne nulla della loro attuale presenza e funzionalità, anzi aggiungendone di nuove.

I parcheggi sono stati collocati nei due livelli interrati, studiando e razionalizzando i flussi di entrata e uscita per garantire massima sicurezza e fluidità di manovra.
