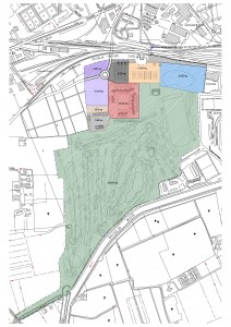
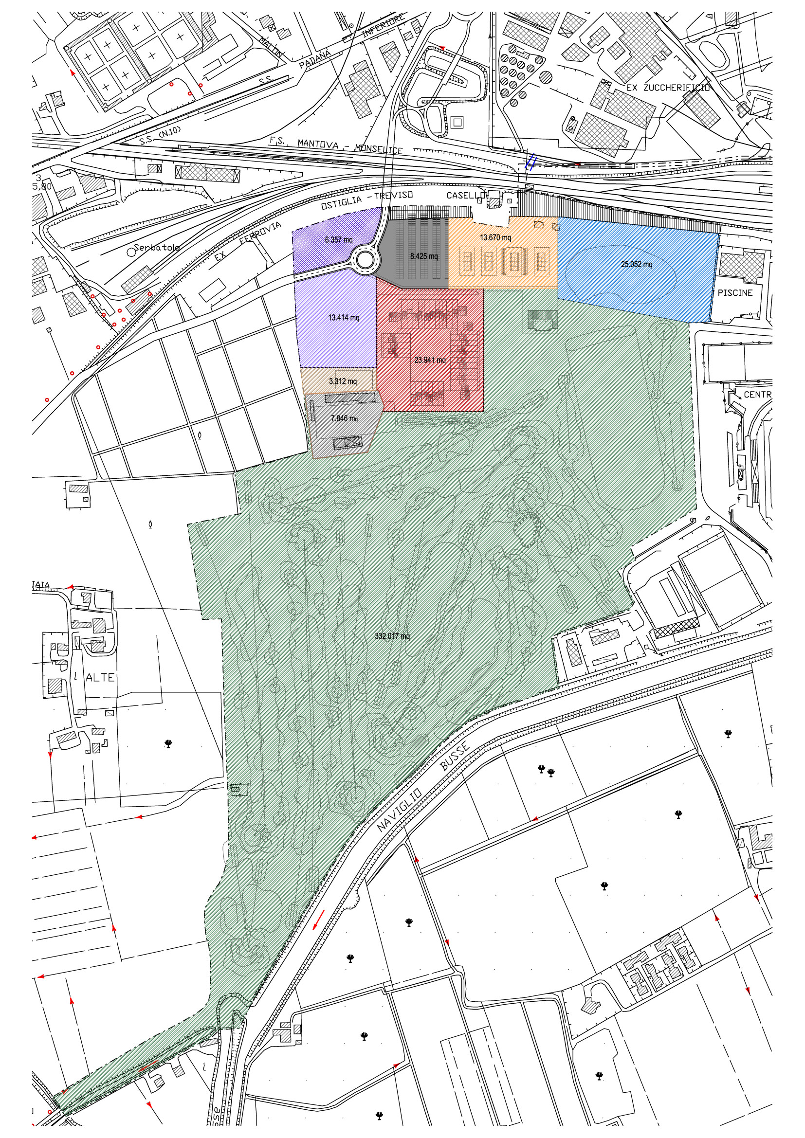
Centro sportivo-golf club-tennis club-residence-hotel a Legnago (VR)

Trattasi di una proprietà di circa 35 ha in Comune di Legnago provincia di Verona.
Il progetto prevede un campo di golf di 9 buche con doppie partenze dotato di score pari a 6220 ml omologato dalla F.I.G. è dotato inoltre di campo pratica e 4 buche executive per allenamento e scuola di golf.
L’impianto è completato da un impianto automatico di irrigazione a doppio rango di una piantumazione di essenze arboree autoctone pari a circa 200 esemplari, inoltre nel sedime dell’impianto è prevista una Club House dotata di locale sacche, spogliatoi/docce, bar-ristorante per almeno 200/250 soci. Al bar e ristorante oltre i soci potranno svolgersi meeting, manifestazioni, feste e matrimoni.
Il progetto prevede inoltre la costruzione di un residence le cui unità abitative sono dotate di garage e di una quota immobiliare di proprietà dell’impianto golfistico, inoltre dispongono di uno spazio verde ad uso privato a quota piano terra ed una piscina condominiale completa di impianto di idromassaggio.

Gli edifici esistenti saranno restaurati con le stesse caratteristiche delle costruzioni del Residence.
A nord della proprietà vi è un’area destinata a struttura ricettiva, che può ospitare un hotel 4 stelle con circa 200 posti letto.


